Sélectionnez votre langue

SERVICE CLIENTS : +33 (0)3 44 51 11 33

Potence sur colonne à tirant supérieur 901, force 1000 kg

Potence sur colonne à tirant supérieur 901, force 1000 kg

Utilisation :

  • Intérieur
  • Ateliers
  • Garages
  • Services techniques
  • Laboratoires
  • Ambiance propre...

  • Construction mécano-soudée très robuste.
  • Profilé creux type OMEGA pour un déplacement aisé de la charge sans encrassement de la voie de roulement.
  • Orientation très facile.
  • Les déplacement s'opèrent par poussée sur la charge uniquement.
  • Rotation 270°.
  • Plaque d'assise carrée, nervurée.
  • Finition : grenaillage SA 2.5 et peinture poudre polyester 60 microns C2 (RAL 1028).
  • Vitesse de levage maximum = 16 m/min.
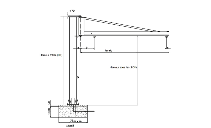
  • Hauteur sous fer de 2,5 m en standard. Autres dimensions : nous consulter.
  • Disponible avec une portée de 2, 3, 4, 5, 6 ou 7 m. Autres portées : nous consulter.
  • Poids : selon modèle, nous consulter.
  • Livrée avec chariot porte-palan.
  • Options possibles : interrupteur mural cadenassable, palan électrique ou manuel…
  • Fixation sur massif béton par crosses d’ancrage (gabarit et crosses en option) ou fixation sur dalle béton par cheville chimique (en option) avec ou sans semelle de répartition (en option).
  • Mise en place de la potence : prévoir 150 mm de garde sous le plafond.
  • Mise en place et installation : nous consulter.

Caractéristiques techniques du Potence sur colonne à tirant supérieur 901, force 1000 kg

Force kg1000
Portée maxi. m2 / 3 / 4 / 5 / 6 / 7
Hauteur sous fer m2,5
Poids kgNous consulter.

OPTIONS

Ligne d'alimentation pour palan électrique
Palan manuel
Palan électrique
Butée de rotation

Cette butée est soudée au montage pour limiter l'angle de rotation.

Butoir de palan réglable

Ce butoir permet de limiter le déplacement du palan sur un fer.

Interrupteur cadenassable
Gabarit et tiges d'ancrage

Ces équipements permettent de fixer une potence sur fût. Le gabarit assure une bonne position des tiges servant à la fixation de la potence.

Verrouillage une position inox

Permet de verrouiller la flèche de la potence dans une position déterminée.

Verrouillage multipositions inox

Permet de verrouiller la flèche de la potence dans plusieurs positions déterminées.

Semelle de répartition

La semelle de répartition est utilisée uniquement lorsque la mise en place d'un massif béton avec tiges d'ancrage est impossible.

LE CONSEIL HUCHEZ

Recommandation importante : Le support de la potence doit être suffisamment résistant pour supporter les efforts.